新闻中心

同济大学景观学系景观管理系列课程实践
“ 共治的景观 ”
第七届参与式社区规划工作坊
2023.03.29 - 2023.04.22


一个月,两场讲座
5场工作坊,每场70+位参与者
十余位教授嘉宾
热爱社区、热情参与、拥抱问题
「 重建附近,街区共生 」
2023年4月22日,同济大学景观学系景观管理系列课程实践——第七届“共治的景观”社区参与式社区规划工作坊圆满落幕。本次工作坊延续2022年景观管理课程议题:
“一处公共空间如何在
没有直接政府财政资金的支持下
实现自主良好持续运行?”
引导学生通过实地访谈调研、利益相关者分析、工作坊、快闪实验等形式体验在真实的街区空间中发现问题、剖析问题再到尝试解决问题的全过程。参与中有以角色扮演的方式再现的不同社会角色关于公共空间的利益博弈,也有身处实体空间中与商户街坊的真实探讨。作为后疫情下教学实践行动的回归,本次系列工作坊希望学生们不止于图纸与构想,深入社会,探索街区共生的可能。
-01-
导师及嘉宾
(按照拼音顺序排列)
范浩阳
四叶草堂联合发起人&总干事
国家一级注册建筑师
何嘉
大鱼社区营造发展中心
联合发起人、理事长
国家一级注册建筑师
刘悦来
同济大学建筑与城市规划学院
副教授
社区花园与社区营造实验中心主任
上海四叶草堂联合发起人&理事长
李婵
东明路街道自治办
街区治理负责人
阚童
萝卜规则社区发展促进中心理事长
沈春雷
东明路街道党工委书记
吴楠(阿甘)
美国UID建筑设计事务所 首席代表
成都社造家文化传播有限公司CEO
南京互助社区发展中心理事长
吴伟
东明路街道凌七居民区
党总支书记
王本壮
台湾联合大学教授
台湾社区营造学会理事长
王静
萝卜规则社区发展促进中心创始人
社区治理与议事规则专家
魏闽
四叶草堂联合发起人
国家一级注册建筑师
朴门永续设计专业认证教师
杨光炤
西安建筑科技大学讲师
尹科娈
同济大学社区花园与
社区营造实验中心副主任
四叶草堂副总干事
张忠格
东明路街道管理办主任
-02-
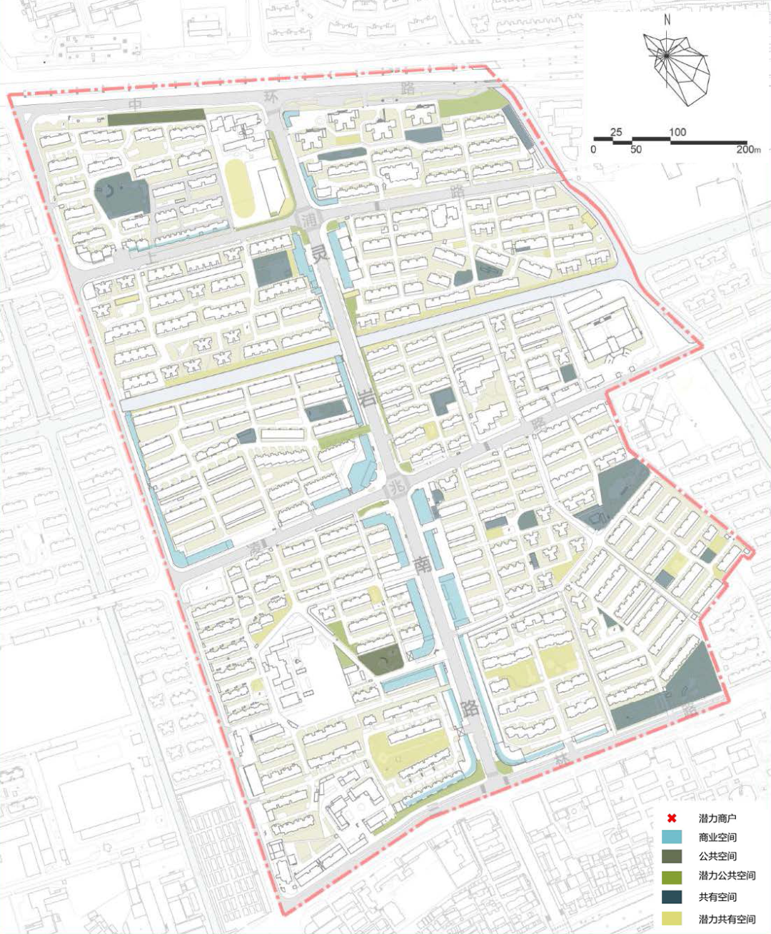
工作坊基地

本次工作坊“街区共生”议题的探讨基地为上海市浦东新区东明路街道灵岩南路街区空间及周边地块。
东明路街道是伴随着上海、浦东大动迁、大开发形成的街道,成立于1999年12月8日。街道由凌兆新村地区和三林城区域两大区域组成。灵岩南路扮演了西部凌兆新村版块南北主动脉的角色,沿街商铺民生服务类为主,串联多个居住区,周边包含三林镇政府、三林社区卫生服务中心及凌兆小学、浦东新区小天鹅幼儿园和清源小学。
灵岩南路片区随着发展逐渐呈现出公共空间缺失或衰败、街区活力不足、利益主体关系不够紧密等问题。恰逢《浦东新区街道整体提升打造精品城区专项行动计划 (2022-2025)》落位灵岩南路契机,本次工作坊希望引导参与者通过实地调研发现和思考空间与社会问题背后的权责利关系,并探寻推动街区活力提升与街区共生的可行性方案。


根据灵岩南路公共空间现状将议题细分为“上学路、围墙边界、店铺周边、背街小巷、屋顶空间、街角空间”六大主题。
-03-
参与成员与前期成果
本次“共治的景观”工作坊参与成员包含了:2023年刘悦来老师毕设组的6位大四同学、景观管理与政策法规课程的49位同学、来自东明路街道在地参与者和特地赶来参与的伙伴们。
工作坊开始前,毕设组的同学们通过结合实地调研,12345热线、POI等多元数据对灵岩南路空间基本情况进行了可视化分析。为调研方向、议题分类与街区更新可持续策略的导出提供依据。

-04-
发 现
01
创智农园参访
3月29日,导师COCO尹科娈带队,工作坊伙伴们对创智农园进行了参访。小蓝屋内济济一堂,听创智坊社区陆书记、共建社社长小艾讲述创智农园诞生、睦邻门打开的故事,以及创智农园自治组织的形成,如何开展可持续运营。
02
现场工作坊·调研
4月1日,“共治的景观”首次东明路街道在地工作坊举行。下午来自萝卜咨询的王静、阚童两位老师作为嘉宾加入导师队伍。一起走街了解灵岩南路商业、公共空间基本状态后,大家在开展分片区调研。各组组长与毕设同学在东明街区发展中心进行了总结与复盘探讨。
03
现场工作坊·共创
4月8日,各小组邀约了前期调研过程中发现的街区空间利益相关者、关键行动者,以角色扮演、过程演绎等方式对各片区的核心矛盾进行推演分析,梳理背后的权责利关系,初步建立街区共生机制与策略。
-05-
演 绎
4月15日,“利益关系架构与共生机制探讨”工作坊在同济大学校内开展。西安建筑科技大学的杨光炤老师带领同学们前来交流,加入了工作坊探讨。各组在两次实地调研的基础上进一步加深了对不同空间可持续运维的思考,总结产出了相对完善的共生机制框架。
社造没有标准答案,是一个不断探求,因地制宜的过程。
——杨光炤
-06-
总 结

-各组机制成果-

4月22日,“空间快闪行动与共生成果交流”工作坊,同学们首先分享回顾了汇报环节前在各研究片区开展的快闪行动。随后大家针对“无政府资金支持如何实现可持续”的主题议题分享了工作坊全过程的调研发现、机制成果、回应策与迭代思考。
王本壮教授、吴楠(阿甘)老师,东明路街道党工委书记 沈春雷、东明路街道管理办主任 张忠格、东明路街道自治办街区干部 李婵作为嘉宾导师出席工作坊,进行了精彩点评。
同学做了重现场景,让场景有一个再生,以沙盒的形式,诱发事件的可能性,涉及了多个专业,建构了一个很正面的循环。
——王本壮
在事件中,看到同学们的扰动与激发,任何一个街区改造都可能有多次改造,学生参与是一个路径,要有递进和关联。
——阿甘
同学们对社会与空间有了更深刻的认识,社会的运作机制非常复杂,在街区中有很多关系,建议大家关注社会空间的认识提升,需要掌握大家跨界融通的能力,同时在做方案时更加考虑操作性问题。希望同学们在就业之后做更多有利于公民的事情。
——沈春雷
灵岩南路具有发展的潜力,政府有相关机制支持,各部门的共同配合良好,充分发挥商铺的力量,同学们的想法方案有望落地。
——张忠格
-X1-
讲座回顾
共治的景观特邀讲座1 何嘉:
共治的景观特邀讲座2 吴楠(阿甘):
-X2-
学生思考
我从来仅仅以设计者的目光看待场地,而场地中的人可能只是问卷调查中的一个数据,100%中的1%,但当我真正和他们产生关系,听取他们的想法与意见时,我才真正有可能尊重场地、尊重人,否则只是自我满足式地幻想、避重就轻地解决;而那些拒绝深入参与工作坊的却与场地息息相关的人群在设计中又应该被置于怎样的位置更加值得我去思考。
——王江韵
从见不到人的设计到真实走访社区,链接社区成为社区的一部分,参与设设计让我重新开始思考自己作为景观专业的学生能做什么,是否有比起图面更有意义的事情去做。在当下,社区与街区的参与式设计我认为依然是有难度的。当下的环境大多数事依然追求效率,做社区花园、社区营造等这样相对低效率的事情,既是一种困难,也是一种意义。
——王奕辰
各方成员其实都有一份帮助其他人的意愿 ,但是往往建立在牺牲自己利益上,长此以往导致热情的熄灭。而通过工作坊的方式,将大家的需求愿景与能贡献出的力量开诚布公的聊一聊,各方都出 一份力 ,各自收获一份利益 ,在合作共赢中代替原来单纯的给予!工作坊的介入,正像一粒催化剂 ,能够激发更深层、 更广泛的市民参与。
——刘泉秀
很多居民并不是没有想法和热情,而是苦于没有诉说的渠道以及存在信任的问题。工作坊中,我们初步建立了凌兆七村片区商户、居委和部分参与居民以及围观居民的联系,通过访谈、活动组织、方案展示等形式,让七村的各方看到了自己心目中理想家园能够实际落地的可能性,其中街角花园、入口美化等节点,在各方的出谋划策下,产生的方案已经报批,23年下半年即将动工。
——孔 超
与居民连接的过程比我们的设计结果更重要。我感受到参与式设计的魅力:我们和居民合作和讨论完成我们的设计,我们的“甲方”是人民。登门拜访居民的过程中,我发现只要熟悉下来,每一个人都有深沉的热情。在快闪行动中,我们用胶带和花朵快速装饰了一幅墙面,希望激发居民的家园意识。有这样好的甲方和这样好的群众基础,我相信参与式设计的路子一定走得通。
——杨七圆
与社区居委和居民的沟通过程让我更加了解他们的需求、关切和期望。这些工作坊成为了一个开放的平台,让我能够倾听社区居民的声音,了解他们对社区的愿景和改进的期望。我发现,当居民可以直接参与规划过程时,他们更有动力和责任感去推动变革,共同打造一个更好的社区。房东、租户、居民、居委、政府多方之间有着复杂而利益关系网,即存在冲突则有利可寻。
——杨院洁
课程内容和实践调研环节让我收获感悟很多,未来我还将继续思考社区自治与资金支持的相互关系,探讨公共空间的可持续改造模式,使其具有更大的普适参考价值与意义。
——李金歌
我们需要先拿出一些让步与诚意,进行“试吃营销”,增加投资人和政府的认知和信心。获得满意评价后获得更多空间与资金,让公众参与进来,日臻完美,自持运营。
——王柏峻
我认为共治的意义,不仅在于通过一些存量更新手段提高物质上的社区生活品质,而且更在于拉近人与人之间的联系,提高街区所带来的精神舒适度。
——李瑾琪
在实践沟通的过程中,发现其实有很多群众以及运营者较难理解共创共建的思想内核,合作共赢观念有待激发,所以在实际工作中加强科普宣传和动员显得尤为重要。
——孙蔚然
-X3-
幕后故事以及给未来的歌
以毕业设计同学身份参与本次工作坊的王奕辰同学从小在东明路街道长大。幼儿园在小浪花幼儿园,小学在林苑小学,东明路街道就是他想要重建的附近。
筹备4月22日的工作坊的过程中,他受到刘悦来老师的邀请,连夜创作了这首《一起改变我们爱的世界》,并在工作坊中进行了演唱。他说:“创作匆忙,也不成熟。希望能以这样的方式与大家共勉。就如同社区的共建共治,即使不成熟和完美,但相信通过共同的力量一定能将花开和笑容传播到更广更远。”
附歌词:
只会向前不停的指针,那些关于回到过去的梦
草坪上的石头和星辰,却已变成回忆的泪痕
每人心中无言的厚壁,沉默无法撬动的孤寂
我想从此去改变去寻找,寻找自由和存在的意义
不经意间我们藏起快乐和天真,我们的心底布满伤痕
看着钢筋匆匆滚过遗忘的角落,看着水泥抹平脸上的笑痕
可是我想此刻不停去爱和相信,我们爱这世界繁华和艰辛
每当你的风信子落入我的手心
每当我牵着你的手感受温暖和生命
照片被遗忘在书架角落,星群变成大楼的灯火
我们努力活着得到这一切,却总是忘了也许能做些什么
翻开属于我们的沃土,洒下满怀希望的播种
一起推开沉寂的理想之门,你能否想象那个七色的梦
从今天起我想告别孤单和悔恨,告别在失意中越陷越深
那么多等待成长为绿洲的灰色,等待成为朋友的陌生人
晴朗的一天远方传来歌声和喜悦,暖风吹动天边风筝的摇曳
翠碧世界树稍下舞动的衣角
就这样一点点改变我们爱的世界
主办方
同济大学建筑与城市规划学院景观学系
共同支持
东明路街道
社区花园与社区营造实验中心
四叶草堂
聚明心社区规划与营造支持中心、东明街区发展中心

工作坊召集人:刘悦来
工作坊学生成员:王江韵 王奕辰 刘泉秀 孔超 杨院洁 杨七圆 傅晓蝶 江婧瑜 张雨迪 许霖熹 刘佳 李泽泰 赵佳慧 查佩君 李金歌 张洪博 徐维秋露 王柏峻 胡晋源 朱凌昀 相子菡 丛佳琪 李瑾琪 梁蓝月 钟尚洋 范诚昊 赵静 吴一粟 杨舒捷 王一如 魏蓝冰 周子翔 陈熙隆 骆文慧 孙蔚然 段柔菲 刘洋 李陶 邓伊诺 张桉 姚欣然 王浩宇 姚菁怡 周怡汝 周石平 黄铱静 李素琳 金诗博 邓闯 李堃钰 邓黄怡 黄睿丰 洪军 董镇玮
导师及嘉宾:范浩阳 何嘉 刘悦来 李婵 阚童 沈春雷 吴楠(阿甘)吴伟 王本壮 王静 魏闽 杨光炤 尹科娈 张忠格
筹备团队:尹科娈谢宛芸 王嘉颖 崔灵楠 霍广琦 王江韵 王奕辰 刘泉秀 孔超 杨院洁 杨七圆
编 辑:崔灵楠 王奕辰
特别鸣谢:凌七凌二凌六居委会凌兆小学的场地支持
工作坊志愿者 王勃鉴等的内容支持