新闻中心

前 言
同济大学建筑与城市规划学院与澳大利亚墨尔本大学建筑设计学院交流合作源远流长,双方自2006年起开启互访,于2014年签署合作备忘录,2024年续签学生交流协议,在学生交流与科研合作等方面全面铺开合作。两校师生互访频繁,在学术与文化交流中增进了解、结下深厚友谊,为深度合作筑牢根基。2025年春季,两校正式推出同济大学×墨尔本大学联合毕业设计“Recycling Architecture”课程,为两校学生搭建跨文化、跨学科的交流实践平台,培养具有国际视野与创新能力的建筑人才。

课程由同济大学建筑与城市规划学院助理教授莫万莉、西班牙加泰罗尼亚理工大学副教授、同济大学访问学者Júlia Beltran Borras、墨尔本大学桑晓静共同教授,同济大学建筑与城市规划学院助理教授闫超、墨尔本大学副教授Rory Hyde担任课程协调。
01
INTRODUCTION
课程架构
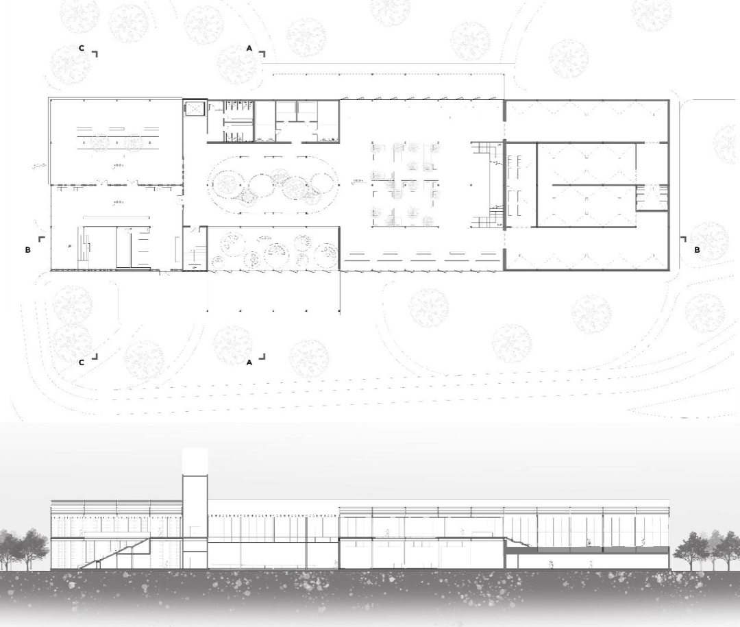
当前的严峻气候挑战不得不迫使我们以另一种方式来重新审视建筑以及建筑学的知识体系。如果说现代建筑建立于既往体系的废墟之上,那么对于今天的建筑学来说,更为重要的则是如何重新定义那些我们所习以为常的观念,无论它们是类型的或是建造的。在这一背景下,本次联合毕业设计致力于挖掘分别位于上海与墨尔本的两处现有建筑场地——始建于1930年代的钢结构厂房建筑上海第九棉纺织厂与始建于1940年代的粗野主义式建筑墨尔本大学旧机械系馆,进而重新思考一种我们所熟知的建筑类型——艺术博物馆的当代组织与空间。就当前的规模和技术要求而言,它是一项复杂而艰巨的计划,同时也包含了当今有趣的文化问题:当下的艺术博物馆为谁服务?艺术博物馆又该如何与公众阐述联系?在当下的数字时代,我们应该需要如何与实物相联系?又需要什么样的空间?在上述挑战之外,本课程设计更希望学生进一步对适应性再利用的效益进行评估,使其不仅在理论上富有意义,并进一步具有极大的现实意义。通过3个循序渐进的任务——博物馆原型设计、适应性再利用、全生命周期概念建构,学生结合文献阅读、案例分析与研究,逐步推进设计。
课程以线上互动为主,通过联合讲座、评图、讨论以及场地信息互换等多种形式,以增进同学们之间的交流。在学期中,Rory Hyde与李佩娴副教授分别为同学们带来了关于博物馆建筑类型的过去与未来和全生命周期碳评估的讲座,极大地开拓了同学们的知识视野,并为后续改造设计奠定了概念基础。
课程过程记录
(滑动查看更多)
02
INTRODUCTION
终期评图
6月20日,在两校各自小组评图后,本次联合毕业设计终期评图圆满举行。恰逢同济大学建筑与城市规划学院毕业典礼,身着毕业服,也令本次终期评图具有了格外的意义。同济大学建筑与城市规划学院副院长袁烽教授与墨尔本大学建筑学院院长Julie Willis教授开场致辞。袁烽教授回顾了2024年Julie Willis教授的同济之行,向参加本次联合毕业设计的同学们表达了祝贺,并期待未来两校能够在硕、博等不同层面进一步推进交流与合作。上海交通大学设计学院孙昊德副教授与澳大利亚皇家建筑师协会会员John Scaramuzzino作为评图嘉宾,带来了中肯而精彩的点评。
联合终期评图
(滑动查看更多)
03
INTRODUCTION
设计成果-同济大学
来自同济大学2021级国际班的5位学生参与了本次课程,聚焦工业遗产,通过创新设计,如引入自然元素、重构空间等,打造多功能艺术空间,推动文化交流与可持续发展。
Skeleton for Art
来自加拿大的Emily Yu一直对建筑如何塑造人类体验充满热情,尤其对住宅和社区设计情有独钟。未来她希望能回到加拿大,在建筑或施工领域从事项目管理工作,以将创意设计理念与实际实施相结合。她的项目Skeleton for Art探讨了如何通过当代设计来保护和重新想象工业遗产。项目的主要特点包括CLT双结构系统、围护结构适应性再利用与位于底层的艺术家广场,从而以确保博物馆在满足周边社区需求的同时长久存在。通过重新规划过去的工业用地,该项目倡导优先致力于再利用、韧性与长期社区利益的可持续设计策略。
Skeleton for Art | Emily Yu
(滑动查看更多)
From Steel to Soil
来自泰国的Teeraphong Chen的项目From Steel to Soil关注当代科技艺术与新媒体艺术的展示及其空间塑造。在他看来,未来的艺术馆将是一处自然与技术相结合的沉浸式空间,将是一处吸引所有感官、而非仅仅是视觉的地方。基于这一理念,项目将一种“可调控”的自然引入博物馆内部,同时通过光线的控制——天光的处理与新媒体艺术的沉浸式展场空间,创造出一种交替的体验。
From Steel to Soil | Teeraphong Chen
(滑动查看更多)
Inclusive Landscapes as an Alternative
来自摩洛哥的Chadine Kisra的项目Inclusive Landscapes as an Alternative通过既有厂房结构的拆卸与重新组装,重构了过去工业厂房的规则屋顶,以更好地塑造建筑与黄浦江以及城市的天际线关系。项目以包容性的景观为核心概念,创造出一处致力于开放性和包容性的未来艺术空间。在其中,展览与展示不再是最为主要的空间,而艺术的生产以及公众的互动成为了核心。此外,设计亦基于算法对既有旧砖墙立面的分析,来影响内部墙体表皮机理的生成。
Inclusive Landscapes as an Alternative
Chadine Kisra
(滑动查看更多)
Industrial Heritage Reimagined
来自委内瑞拉的Fernando Castillo致力于将文化交流、可持续发展和创意表达等这些价值观融入到学术工作和个人生活中,并希望未来继续在建筑、遗产和可持续发展的交叉领域工作。他的项目Industrial Heritage Reimagined探索基于适应性再利用的城市更新。方案的核心是将这座历史悠久的工业建筑改造成多功能艺术博物馆,在保留工厂独特性的同时,融入可持续设计策略。受到泰特当代美术馆和上海当代艺术博物馆等成功案例的启发,项目通过局部的拆除与开放以及新的元素的加入,将艺术博物馆重新想象为一个灵活、包容的空间,以促进公众参与和文化发展。
Industrial Heritage Reimagined | Fernando Castillo
(滑动查看更多)
Borrowed From Nature
来自蒙古的Davkharbayar Ganbold的项目Borrowed From Nature立足于趋光性、蚁巢拟态与鸟巢的结构性三大向自然学习的原则。项目创造性地引入了椭圆元素以打破既有厂房的规则几何特征,同时也通过半透明玻璃及透明性的探讨,为这座未来的艺术博物馆在白天或是夜晚打造出引入拜访的形象。
Borrowed from Nature | Davkharbayar Ganbold
(滑动查看更多)
04
INTRODUCTION
设计成果-墨尔本大学
来自澳大利亚墨尔本大学建筑设计学院的15位学生中,10位选择了位于上海的场地,5位选择了位于墨尔本的场地,以一种更具创造性的方式想象了两处场地的未来,从展览单元至整体体验,逐步重构了未来艺术博物馆的可能性。
滑动查看更多