新闻中心





教学过程中部分学生的炭笔设计草图
(印书怡、叶正杭、安与同、邱乐然、谢冰)
从学期初画框设计训练到展览空间的快速勾勒,从建造研究到设计发展,炭笔草图在本学年中扮演了格外重要的作用。具有一定精确性的比例炭笔草图能够为低年级同学提供一种有效的心、手同步的设计方式,逐步通过1:200、1:100、1:50、1:20的比例推进不同阶段的设计思考。本学年的14个项目可大致区分出竹木结构、混合结构、砌块建造和旧宅改造4个主题,在此一一分享。
指导老师:
Wilfried Wang、莫万莉
学生:
印书怡、叶正杭、黄文钰、安与同、高星烨、吳志熹、谢冰、胡斐然、王智琳、王思语、邱乐然、成子欢、金沛茵、叶清仪
评图嘉宾:
李翔宁、田唯佳、任天
轻质建构
安与同


项目基地位于贵州黔东南,以蜡染为生产,参照当地的吊脚楼类型为主要结构框架。蜡染是黔东南的传统手工艺,而吊脚楼则是当地传统的风土建筑形制。我想利用现代的建筑手法与传统相融合。一楼为生产销售层,包括织布、绘制、染色、清洗、晾晒以及销售几个步骤的功能分区。二楼为起居室,除了卧室等次要房间是平屋顶封闭,其余空间皆为彻上明造,配合向上收分的柱子,营造出宏大的空间氛围。南面大部分设玻璃外墙以获得更多的光线,也起到吸引游客前往商店消费的作用;背面邻水,尽最大程度与水源互动。南北面既各有特点,又在形式上相互统一。
叶清仪


“Arunika”位于 Indonesia, Riau, Siak Sri Indrapura, Kolam Hijau。这里没有四季之分,全年只有夏季,属于热带雨林气候,所以不乏树木且由于该地区毗邻河流,因此周围种满了棕榈树。棕榈树可以制成棕榈木,既是坚固的建筑材料,也是具好的家具材料。“Arunika” 是采用当地的树木和建筑方法建造的,具有当地风情,目的是学习联系周围环境与建筑的关系以及研究和学习当地建筑如何采用周围大自然作为材料来抵御当地气候。考虑到整个功能空间的流线,该建筑由三个四边形组合成对称的 s 形状,有利于从生产到产品成果的流程流线。它是木材作坊与住宅为一体的建筑。靠河的部分是工作区,中间连接的部分是产品仓库,最靠近道路,也就是最前面的部分是商店,商店正上方是住宅区。
王思语


在本次项目中,我们被赋予了一项独特挑战:采用除钢筋混凝土外,选址处传统的地方材料来构建一个集产品生产与居住功能于一体的建筑。经过调查与思考,我决定将四川省当地常见的木构式建筑技艺与独具特色的竹编夹泥墙作为核心建材。鉴于四川省较为潮湿的气候特征,我特别设计了双层墙体结构,旨在有效阻挡雨水侵袭的同时,还具备出色的保温与隔热性能。此外,鉴于该建筑需同时满足产品生产和居住的双重需求,其平面布局相较于常规设计无疑需要更多的创新与尝试。我们因此进行了多样化的方案设计,并结合个人体验与实际生产需求,力求筛选出最为适宜的布局方案。
混合结构
高星烨


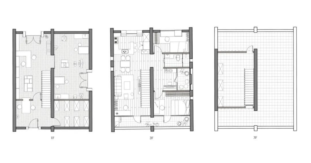
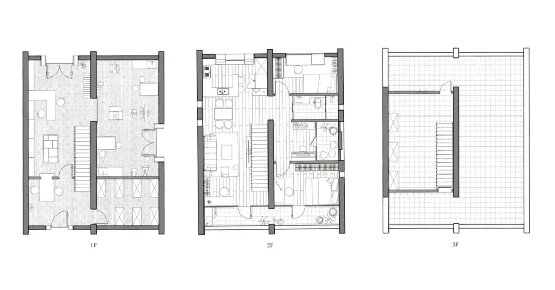
这学期的设计是一次理念大于形式的尝试。我试图使秩序与随机共存于这间建筑中,使之成为形式克制,内涵丰富而自洽的一体。平面没有使用惯常的以实墙和门洞区分房间的方式,而是用墙自身的姿态界定空间:三个U字型夯土墙体划分出六个功能空间,三实三虚。南侧十二扇门组成的门列呼应古建筑中的屏门,加强在地性。空间虚实程度与对应的功能相适应,三个虚空间由实空间之间的间隙相连,呈现渗透的姿态,造成空间的流动贯通而不缺乏围合感。布局看似有机但是遵从网格秩序:以75cm为单位的正交网络。这个网络由北面窗列、南面门列与柱廊提示。结构同样体现秩序与随机的共存。屋顶重量由柱与墙共同承担,建筑东、西、北三面主要由墙承重,角落由柱承重。南面屋顶出挑部分由柱承重,但是卧室部分伸出一部分墙体接住柱子,完成承重的转换,提示墙柱共同承重的配合。由于精确的模数控制,建筑细部如门窗、柱、椽得以完全对位,使秩序蕴含于细节中。
邱乐然


吴志熹


轻质建构
叶正杭


项目位于中国南部,广东省东莞市的一个小城镇内部。设计师追随当地传统,为一个制作竹器的家庭设计一栋生产与住宅相结合的建筑。建筑主体为砖木结构,五面平行砖墙承担竖向荷载,木梁提供横向跨度。项目布局为一层生产、二层居住、三层露台,与当地传统布局一致。建筑西侧设置骑楼公共空间,保持街道的连续性,符合当地建筑特色。中心设置庭院,解决当地建筑排布密集导致的光照与通风不足问题。设计师从竹器编织的方法中获得灵感,通过特殊的交叉砖块砌法,在建筑东、西、南立面设置富有韵律的红砖幕墙。竹绿与砖红的碰撞意图激发对竹器制作这一逐渐流的传统的活力。
印书怡


五常,在这片肥沃的黑土地上,在这个由勤劳的汗水与自然的伟力共同勾勒出的稻米之乡,从一棵稻草上,我们可以洞见一切奇迹的生长。阡陌纵横万亩连的广袤沃土,稻谷金黄翻作浪的秋收景象,甚至是方宅十余亩,草屋七八间。在这座稻草房的设计中,我将新材料秸秆砖与东北传统民居的形制相结合,利用秸秆的保温性与耐久性,为居民打造舒适温暖生活空间。同时,根据加工包装稻米,开放早餐档口的生产需求,调整室内空间布局。以求住宅在自然融入乡村环境肌理的同时,满足现代化生产需求。
金沛茵


“Pure Form”项目位于深圳宝安区开屏村,覆盖面积约90平方米,融合了工作和居住功能。该项目位于一个典型的城中村,旨在通过简约设计提升空间的使用效率。一楼设有木工坊,开放的创作和手工制作的空间;二楼则用于居住的私人空间,提供舒适的生活环境,并配有天台,以更好地适应深圳的生活方式。建筑采用砖墙承重结构,利用三面平行的承重墙体划分功能区域,既满足了动静分区,又实现了空间的灵活运用,更是成为项目最主要的语言。另外立面上,用木材搭建的家具让室内外空间联通,增加空间的层次。通过简洁的设计语言,项目强调了功能性与美学的结合,旨在为居民创造一个既实用又舒适的工作与生活空间。
谢冰


项目位于黑龙江省哈尔滨市农丰镇,希冀设计一栋兼具当地传统砖木结构与一定生产能力的现代住宅,以探寻传统砖木结构住宅的现代设计方式。设计面向的主要产品为农作物。设计特点:1)运用材料的表达和高差变化,使房屋与前后院形成一个统一的整体;2)遵循当地建筑特色,以砖墙作为外部,内部采用木构;3)运用高差的处理,使住宅内外有丰富的空间变化,并达到划分后院功能的目的,从而自然形成住宅功能分区的划分;4)考虑到使用者的生活习惯,在住宅内设仓库和麻将室
成子欢


村落这个词语似乎总与广袤相关联,但作为一个城中村,集美大社拥有密集的自建房,且在较长的一段时间内处于缺乏规划的混乱状态。此外,被简单搭建的自建房背后,大社作为南洋华侨的故乡,其传统建筑实际上有着闽南与南洋文化交融的态势。设计场地位于大社较为中心的区域,为海蛎煎制作者及其家人所使用,主要建筑材料为石材及红砖。其空间组成上仿照南洋“店屋”的空间组成形式,一楼靠街道的部分作为店面及生产场所,其余部分作居住使用。基于高湿度气候下对于采光和通风的要求,在客厅内增设天井。独梁楼梯及台盆分离出卫生间等选择,意在尽可能增加有限面积内使用者的空间感知。
旧宅更新
黄文钰


项目位于广东省台山市虎山村,一块10*12m的长方形地皮。因历史原因,村内建筑大多采光不足、通风困难。本次设计是对当地一栋具有百年历史的老房子进行改造,该建筑将用于生产传统的台山样式木制小件家具。项目旨在运用当地的建造材料,为当地居民提供舒适的生活环境以及方便快捷的生产空间。设计沿用传统的“三间两廊”式布局,正面设有两个门,分别通往生活和生产空间。扩大原有的中庭部分,向外增设天井,增加采光和通风。重新布置了旧房的平面布局,创造更符合当下需求的生产生活空间。
胡斐然


本项目我选择的是做老房改造。选址在山东省东营市东王村,也是我的家乡。这间老屋是我一到两岁时生活的地方,所以我想把它改造成我自己的“世外桃源”,也是给我自己童年的一场“售后”。改造首先解决的是农村的厨卫问题,我把卫生间和厨房都改造成了现代楼房的格局。其次是屋内布局的创新。客厅舍弃传统“沙发、茶几、电视”的布置,而选择保留原先主卧的炕当作会客活动区域。另外,我对院子做了一些改变。原先的院子是整片的水泥硬化,我把它改成砂岩板铺路,并增加了许多绿化区域。用于分隔的绿化植物都选用高于视线的植株,营造类似园林移步换景的效果,使从院子进门到屋内的路线更加有趣。
王智琳


项目选址在山东烟台的一个小村落里,是设计者祖上三代人共同居住过的老宅,满载着整个家族的记忆。在本次课题里,设计者以老宅为设计基地、结合未来居住者“回乡养老”的使用需求进行现代化改造。从保留下的建筑来看,原有的房屋保存良好、结构完整,推到重建会导致资源的浪费。因此,在重新设计中尽量避免了大规模的拆除,在原有的房屋基础上进行重新规划和设计,满足了使用者“保留大量景观空间以及户外休息场所”的需求。在重建的过程中,学习并使用原有的建造手法,选用当地传统砖、石、木、瓦材料,保留原汁原味的老宅风情,使其不但具有居住价值,更带有浓厚的人文情怀和时代价值。