新闻中心
Fall 2023 8.5 Weeks
Threshold as Transitional Spaces
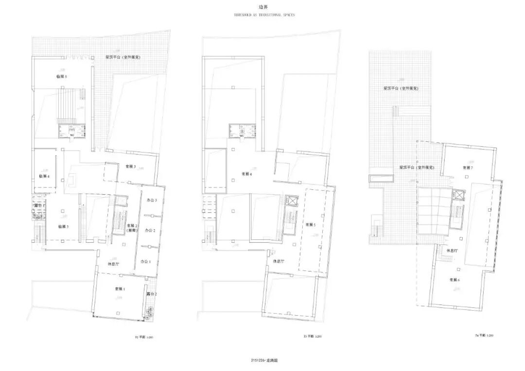
课题为同济大学建筑系三年级上学期“城市环境”的自选题——“社区展览+”(8.5周)。练习选择以“边界”(Threshold)作为设计课议题,旨在探讨如何建立建筑与城市周边环境、建筑内部空间之间的相互关系,其涉及如何借助“边界”来组织行为、体验、公共性的连续和形式,以及调控空间的方向性和氛围的塑造,并以此来回应上述关系的建立。
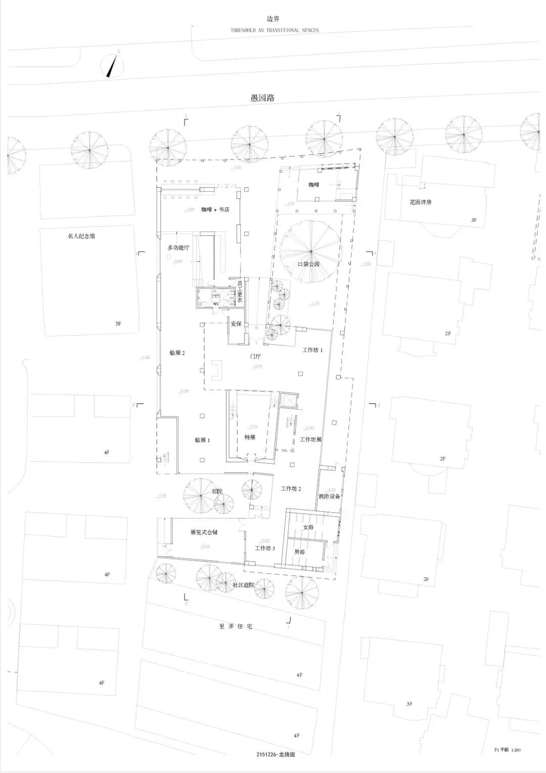
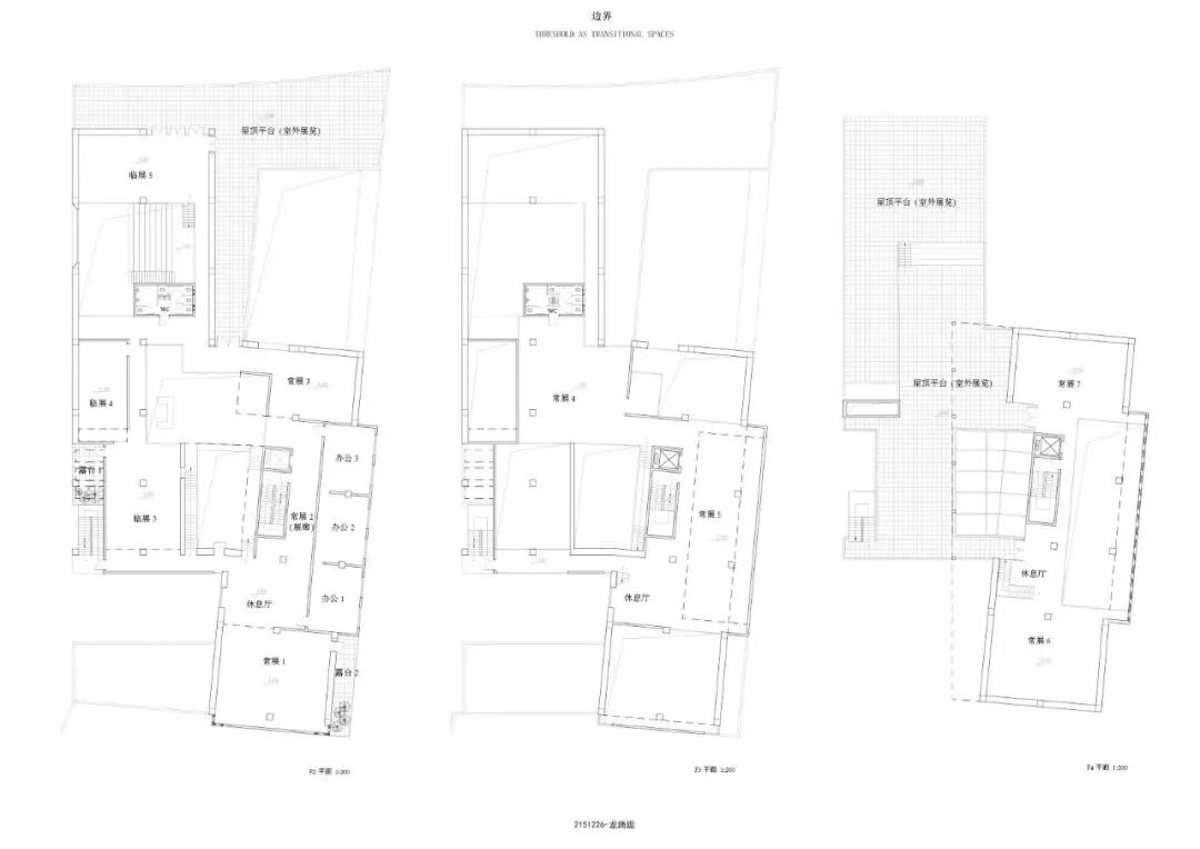
2023年秋季教学选择的基地位于上海愚园路南侧,它与北侧的上海市市西中学隔街相对。愚园路曾位于法租界内。地块面对的是小尺度城市历史街区中闲散的居住者、往来穿梭于小店的白领、熙攘的学生人流和偶尔光顾名人故居的历史追思者。既有的生活形态实际暗含了居住者、往来者的身份、经济状况和行为习性,它提示了“此地”公共场所的基本特征和功能指向。练习要求学生在指定的功能设置外,自定义部分功能计划来回应对场地的观察。同时,设计基地后侧有住宅楼,需要穿越设计基地进入。居住人群穿越场地所带来不同的身份人和行为的混杂将成为设计不能避免的预设问题。
愚园路地块是个南北向狭长的矩形地块,它涉及的是空间在纵深方向的延展,或换句话说,它可以转化为对空间深度的挖掘,亦或是讨论空间深度的扁平化感知。这些成了场地形状所带来的预设的基本问题。





























龙 旖 旎









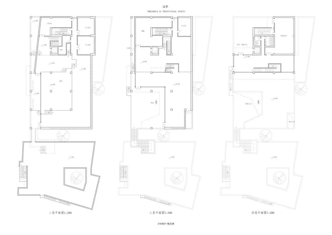
张 元 杰







冯 钰 研(华南)